Ningbo Richge Technology Co. , Ltd.
Ningbo Richge Technology Co. , Ltd.
สินค้า
สินค้า
ZW7-40.5KV แรงดันไฟฟ้าสูง 3 เสาสวิตช์ 35kV H.V. เบรกเกอร์สูญญากาศกลางแจ้ง
  • ZW7-40.5KV แรงดันไฟฟ้าสูง 3 เสาสวิตช์ 35kV H.V. เบรกเกอร์สูญญากาศกลางแจ้งZW7-40.5KV แรงดันไฟฟ้าสูง 3 เสาสวิตช์ 35kV H.V. เบรกเกอร์สูญญากาศกลางแจ้ง

ZW7-40.5KV แรงดันไฟฟ้าสูง 3 เสาสวิตช์ 35kV H.V. เบรกเกอร์สูญญากาศกลางแจ้ง

Model:ZW7-40.5
เครื่องดูดฝุ่นความเร็วสูง ZW7-40.5 กลางแจ้งใช้เสาแยกที่ออกแบบมาโดยเฉพาะและกลไกการทำงานที่เชื่อถือได้สูง อุปกรณ์ส่วนใหญ่จะใช้ในกริดพลังงานค่าใช้จ่ายกลางแรงดันไฟฟ้าสำหรับการหารและรวมกระแสโหลดกระแสโอเวอร์โหลดและกระแสไฟฟ้าลัดวงจร   ZW7-40.5 Breaker Vacuum Circuit กลางแจ้งกลางแจ้งเป็นอุปกรณ์ไฟฟ้าแรงดันไฟฟ้าสูง ATREE-Phase AC 50HZOUTDOR อุปกรณ์ไฟฟ้าแรงสูงที่เหมาะสมสำหรับการควบคุมและการป้องกันระบบการส่งกำลังและการกระจายตัวของการเปิดใช้งานการใช้งาน และการควบคุมการควบคุมระบบพลังงานสามารถเพิ่มหม้อแปลงกระแสไฟฟ้าได้สำหรับการวัดและการป้องกันเบรกเกอร์วงแหวนนั้นติดตั้งสปริงหรือแอคชูเอเตอร์แม่เหล็กไฟฟ้าด้วยประสิทธิภาพเชิงกลที่เชื่อถือได้และการทำงานบ่อยครั้ง

ZW7-40.5KV แรงดันไฟฟ้าสูง 3 เสาสวิตช์ 35kV H.V. เบรกเกอร์สูญญากาศกลางแจ้ง

ZW7-40.5 เบรกเกอร์สูญญากาศกลางแจ้งกลางแจ้งเป็นอุปกรณ์ไฟฟ้าแรงดันไฟฟ้าสูง AC 50Hz กลางแจ้งสามเฟส มันเหมาะสำหรับการควบคุมและการป้องกันของระบบส่งกำลังและการกระจายพลังงาน 20-40.5kV นอกจากนี้ยังสามารถใช้ในโอกาสของเบรกเกอร์วงจรและธนาคารตัวเก็บประจุที่สลับ ผลิตภัณฑ์นี้สามารถใช้กับตัวควบคุมแบบทีละชิ้นอุปกรณ์ reclosing สามารถตระหนักถึงการแบ่งส่วนอัจฉริยะและการควบคุมระบบพลังงานอีกครั้ง สามารถเพิ่มหม้อแปลงไฟฟ้าในปัจจุบันสำหรับการวัดและการป้องกัน เบรกเกอร์วงแหวนนั้นติดตั้งสปริงหรือแอคชูเอเตอร์แม่เหล็กไฟฟ้าด้วยประสิทธิภาพเชิงกลที่เชื่อถือได้และการทำงานบ่อยครั้ง ไม่มีความเสี่ยงต่อการเกิดไฟไหม้และการระเบิด


ลักษณะหลักของเบรกเกอร์วงจรคือประสิทธิภาพการแตกหักที่ยอดเยี่ยมอาร์คสูญญากาศความสามารถในการแตกหักสูงอายุการใช้งานทางกลมากถึง 10,000 เท่าโครงสร้างที่เรียบง่ายการบำรุงรักษาฟรีและรอบการบำรุงรักษาที่ยาวนาน ประสิทธิภาพของฉนวนที่ดีและความสามารถในการต่อต้านมลพิษที่แข็งแกร่ง หม้อแปลงปัจจุบันสามารถติดตั้งได้ตามความต้องการของลูกค้าด้วยความแม่นยำในการวัดสูงถึง 0.2 ระดับทำให้เกิดการโต้ตอบสามเฟส มาตรฐาน: IEC 62271-100


รายละเอียดผลิตภัณฑ์

● ZW7-40.5 เบรกเกอร์วัคซีนกลางแจ้งกลางแจ้งเป็นอุปกรณ์ไฟฟ้าแรงดันไฟฟ้าสูง AC 50Hz กลางแจ้งสามเฟส มันเหมาะสำหรับการควบคุมและการป้องกันของระบบส่งกำลังและการกระจายพลังงาน 20-40.5kV นอกจากนี้ยังสามารถใช้ในโอกาสของเบรกเกอร์วงจรและธนาคารตัวเก็บประจุที่สลับ ผลิตภัณฑ์นี้สามารถใช้กับตัวควบคุมแบบทีละชิ้นอุปกรณ์ reclosing สามารถตระหนักถึงการแบ่งส่วนอัจฉริยะและการควบคุมระบบพลังงานอีกครั้ง สามารถเพิ่มหม้อแปลงไฟฟ้าในปัจจุบันสำหรับการวัดและการป้องกัน เบรกเกอร์วงแหวนนั้นติดตั้งสปริงหรือแอคชูเอเตอร์แม่เหล็กไฟฟ้าด้วยประสิทธิภาพเชิงกลที่เชื่อถือได้และการทำงานบ่อยครั้ง ไม่มีความเสี่ยงต่อการเกิดไฟไหม้และการระเบิด

●ลักษณะหลักของเบรกเกอร์วงจรคือประสิทธิภาพการแตกหักที่ยอดเยี่ยม, อาร์คสูญญากาศ, ความสามารถในการแตกหักสูง, อายุการใช้งานทางกลมากถึง 10,000 เท่า, โครงสร้างที่เรียบง่าย, การบำรุงรักษาฟรีและรอบการบำรุงรักษายาว; ประสิทธิภาพของฉนวนที่ดีและความสามารถในการต่อต้านมลพิษที่แข็งแกร่ง หม้อแปลงปัจจุบันสามารถติดตั้งได้ตามความต้องการของลูกค้าด้วยความแม่นยำในการวัดสูงถึง 0.2 ระดับทำให้เกิดการโต้ตอบสามเฟส

●มาตรฐาน: IEC 62271-100


โครงสร้างเบรกเกอร์

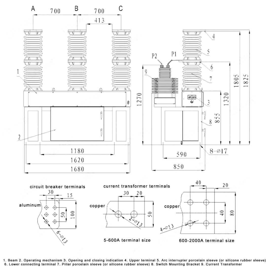
ZW7-40.5 เบรกเกอร์สูญญากาศแรงดันไฟฟ้าสูงกลางแจ้งส่วนใหญ่ประกอบด้วยขั้วในตัวหม้อแปลงไฟฟ้าในปัจจุบันกลไกการทำงานและกล่อง เบรกเกอร์ประเภทนี้มีการออกแบบขนาดเล็กและเปลือกทำจากกล่องเหล็กคุณภาพสูง สามารถเลือกหม้อแปลงปัจจุบันตามความต้องการของผู้ใช้ ZW7-40.5 เบรกเกอร์สูญญากาศแรงดันไฟฟ้าสูงกลางแจ้งและการรวมกันของการควบคุมอัจฉริยะ การเปิดสวิตช์เปิดและการปิดสามารถรับรู้ได้ในพื้นที่และยังสามารถดำเนินการจากระยะไกลผ่านอินเทอร์เฟซการสื่อสาร ข้อมูลอื่น ๆ ของเบรกเกอร์วงจรสามารถส่งไปยังศูนย์ควบคุมและช่องทางการสื่อสารสามารถเลือกสายเคเบิลใยแก้วนำแสง GPRS/CDMA, GSM ฯลฯ


คุณสมบัติ

1. ความน่าเชื่อถือสูงมาก

2. การบำรุงรักษาอย่างสมบูรณ์ตลอดอายุการใช้งาน

3. มีชีวิตทางกลและไฟฟ้าสูง

4. เครื่องทั้งหมดมีขนาดเล็กน้ำหนักเบาติดตั้งง่าย


ข้อมูลพื้นฐาน





พารามิเตอร์ทางเทคนิค





รูปวาดมิติ:




สภาพแวดล้อม


1. อุณหภูมิอากาศแบบอุณหภูมิ: -30ºC ~+60ºC;

2. ระดับความสูง: ไม่เกิน 2,000 เมตร

3. ความดันลม: ไม่เกิน 700pa (สอดคล้องกับความเร็วลม 34m/s)

4. การสั่นสะเทือนหรือการเคลื่อนไหวภาคพื้นดินจากภายนอกสวิตช์เกียร์และอุปกรณ์ควบคุมนั้นเล็กน้อย

5. ระดับการปนเปื้อน: IV;

6. การจัดเก็บ tempeature -40ºC ~+85ºC

7. ความเข้มของแผ่นดินไหว: ไม่เกิน 8 องศา;




คำถามที่พบบ่อย

Q1: คุณเป็นผู้ผลิตหรือผู้ค้าหรือไม่?

A1: เราเป็นผู้ผลิตมืออาชีพชั้นนำ

Q2: รอบการจัดส่งของคุณยาวแค่ไหน?

A2: ขึ้นอยู่กับความต้องการและปริมาณของผลิตภัณฑ์ของคุณ โดยทั่วไปต้องใช้เวลา 5 ถึง 10 วันทำการสำหรับการจัดส่ง

Q3: บริการหลังการขายของคุณคืออะไร?

A3: เราสามารถตอบคำถามของผู้ใช้แก้ปัญหาได้ตลอด 24 ชั่วโมงและให้การสนับสนุนทางเทคนิคที่ครอบคลุมสำหรับผลิตภัณฑ์ทั้งหมดของเราทันที

Q4: คุณแก้ปัญหาคุณภาพได้อย่างไร?

A4: โปรดระบุภาพรายละเอียดของปัญหาคุณภาพ แผนกตรวจสอบด้านเทคนิคและคุณภาพของเราจะวิเคราะห์ เราจะให้ทางออกที่น่าพอใจภายใน 2 วัน

Q5: คุณยอมรับบริการที่กำหนดเองหรือไม่?

A5: เราให้บริการ OEM/ODM และสามารถพิมพ์โลโก้ของคุณบนผลิตภัณฑ์ ทีมงานด้านเทคนิคและใบเสนอราคามืออาชีพของเราสามารถจัดทำโครงการที่น่าพอใจตามภาพวาดและพารามิเตอร์ของคุณ





โรงงาน


ใบรับรอง




แท็กยอดนิยม: ZW7-40.5KV แรงดันไฟฟ้าสูง 3 เสาสวิตช์ 35kV H.V. เบรกเกอร์วัคซีนกลางแจ้ง, จีน, ผู้ผลิต, ซัพพลายเออร์, โรงงาน, ราคาต่ำ, คุณภาพ, การขายล่าสุด, ขั้นสูง
ส่งคำถาม
ข้อมูลติดต่อ
  • ที่อยู่

    No.1083 Zhongshan East Road, Yinzhou District, Ningbo City, มณฑลเจ้อเจียง, จีน

  • โทร

    +86-18958965181

  • อีเมล

    sales@switchgearcn.net

หากมีข้อสงสัยเกี่ยวกับสวิตช์เกียร์แรงดันต่ำ ฉนวนไฟฟ้าแรงสูง สวิตช์สายดินไฟฟ้าแรงสูง หรือรายการราคา โปรดฝากอีเมลของคุณมาหาเรา แล้วเราจะติดต่อกลับภายใน 24 ชั่วโมง
X
เราใช้คุกกี้เพื่อมอบประสบการณ์การท่องเว็บที่ดีขึ้น วิเคราะห์การเข้าชมไซต์ และปรับแต่งเนื้อหาในแบบของคุณ การใช้ไซต์นี้แสดงว่าคุณยอมรับการใช้คุกกี้ของเรา นโยบายความเป็นส่วนตัว
ปฏิเสธ ยอมรับ